As janelas deslizantes francesas exigem instalação profissional?
Jul 30, 2025
Deixe um recado
Quando se trata de melhorar a estética e a funcionalidade do seu espaço, as janelas deslizantes francesas são uma excelente escolha. Como fornecedor de janelas deslizantes francesas de alta qualidade, muitas vezes me perguntam: "As janelas deslizantes francesas exigem instalação profissional?" Neste blog, eu me aprofundarei neste tópico e fornecerei uma resposta abrangente.
A complexidade da instalação de janelas deslizantes francesas
Janelas deslizantes francesas não são apenas janelas comuns. Eles foram projetados para oferecer uma visão perfeita do ar livre, fornecendo funcionalidade deslizante suave. O processo de instalação envolve várias etapas complexas que exigem precisão e experiência.
Primeiro de tudo, as medidas precisam ser extremamente precisas. Um pequeno erro na medição pode levar a uma janela que não se encaixa corretamente, causando problemas como vazamento de ar e água, dificuldade em deslizar e até instabilidade estrutural. Os instaladores profissionais estão equipados com as ferramentas certas e têm a experiência de fazer medições precisas, garantindo que a janela se encaixe perfeitamente na abertura designada.
Em segundo lugar, a instalação de janelas deslizantes francesas requer manuseio adequado do quadro. O quadro é a espinha dorsal da janela e precisa ser instalada de nível e prumo. Se o quadro não estiver instalado corretamente, a janela poderá ligar ou não sem problemas. Os instaladores profissionais sabem como alinhar o quadro corretamente e prendê -lo no local para evitar problemas futuros.


Outro aspecto é a vedação. Uma boa vedação é crucial para a eficiência energética e a prevenção da infiltração de água e ar. Os instaladores profissionais estão familiarizados com os diferentes tipos de vedações disponíveis e sabem como instalá -los corretamente. Eles também podem garantir que a área circundante seja apropriada e isolada, aumentando ainda mais o desempenho da janela.
Vantagens da instalação profissional
Garantia de qualidade
Quando você contrata um instalador profissional, você recebe uma garantia de trabalho de qualidade. A maioria dos instaladores profissionais tem anos de experiência e é treinada para instalar janelas deslizantes francesas com os mais altos padrões. É provável que também ofereçam uma garantia em seu trabalho, dando a você tranquilidade, caso algo dê errado.
Segurança
A instalação da janela pode ser um trabalho perigoso, especialmente ao lidar com grandes e pesadas janelas deslizantes francesas. Os instaladores profissionais são treinados em procedimentos de segurança e possuem o equipamento necessário para lidar com as janelas com segurança. Eles também podem garantir que a instalação seja feita de uma maneira que não represente nenhum risco de segurança para você ou sua família.
Tempo - economizando
A instalação de janelas deslizantes francesas pode ser um processo de consumo, especialmente se você não tiver experiência. Os instaladores profissionais têm as habilidades e ferramentas para concluir a instalação de maneira rápida e eficiente. Eles também podem contornar sua programação, minimizando a interrupção em sua vida diária.
Conselhos especializados
Os instaladores profissionais podem fornecer conselhos valiosos sobre o melhor tipo de janelas deslizantes francesas para sua casa, bem como em manutenção e cuidados. Eles também podem ajudá -lo a escolher o hardware e acessórios certos para aprimorar a funcionalidade e a aparência das suas janelas.
Instalação DIY: é uma opção?
Alguns proprietários podem considerar a instalação de janelas deslizantes francesas para economizar dinheiro. Embora seja tecnicamente possível, não é recomendado para a maioria das pessoas. A menos que você tenha uma experiência significativa na instalação e construção de janelas, é provável que encontre vários problemas durante o processo de instalação.
Por exemplo, você pode não ter as ferramentas certas para fazer medições precisas ou instalar a janela corretamente. Você também pode não estar ciente dos códigos e regulamentos locais de construção, o que pode levar a questões legais na linha. Além disso, se a instalação não for feita corretamente, você poderá anular a garantia do fabricante.
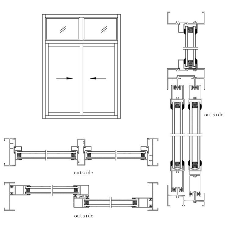
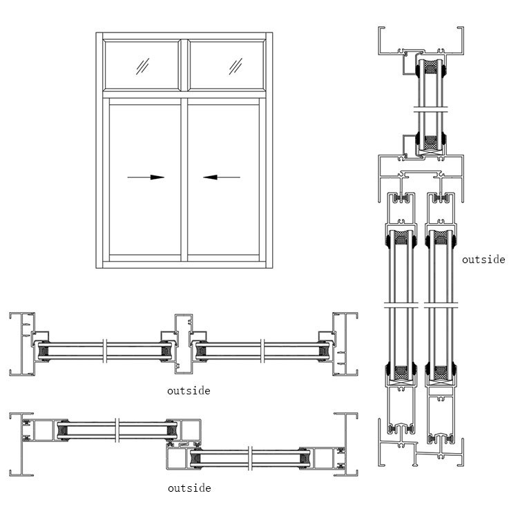
Nossa gama de janelas deslizantes francesas
Como fornecedor, oferecemos uma ampla variedade deJanela deslizante francesaque são adequados para diferentes tipos de casas e orçamentos. Nossas janelas são feitas de materiais de alta qualidade e são projetadas para serem energia - eficientes, duráveis e fáceis de manter.
Além de nossas janelas deslizantes francesas, também temos outros ótimos produtos, como oJanela deslizante de tela de varanda de 4 faixase o3 faixas da janela deslizante de tela. Essas janelas oferecem funcionalidade e proteção adicionais, tornando -as uma ótima opção para sua casa.
Conclusão
Em conclusão, as janelas deslizantes francesas exigem instalação profissional. A complexidade do processo de instalação, a necessidade de precisão e os riscos potenciais de segurança tornam um trabalho melhor para os especialistas. Ao contratar um instalador profissional, você pode garantir que suas janelas sejam instaladas corretamente, economizando tempo, dinheiro e possíveis dores de cabeça a longo prazo.
Se você estiver interessado em comprar nossas janelas deslizantes francesas ou qualquer um de nossos outros produtos, convidamos você a nos contatar para uma consulta gratuita. Nossa equipe de especialistas pode ajudá -lo a escolher as janelas certas para sua casa e fornecer uma cotação. Estamos ansiosos para trabalhar com você para aprimorar a beleza e a funcionalidade do seu espaço.
Referências
- "Melhores práticas de instalação de janelas", National Fenestration Rating Council
- "Energy - Guia de instalação de janelas eficiente", Departamento de Energia dos EUA
